2S Design Build – Design Planning and Construction
  • Services
    • Design
    • Permitting
    • Construction
    • Project Management
  • Portfolio
  • Testimonials
  • About
  • Contact

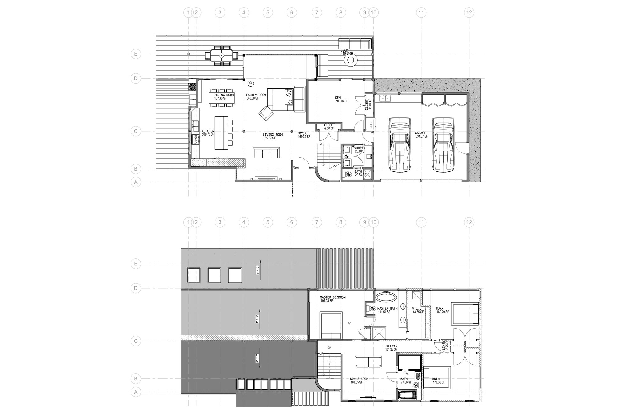
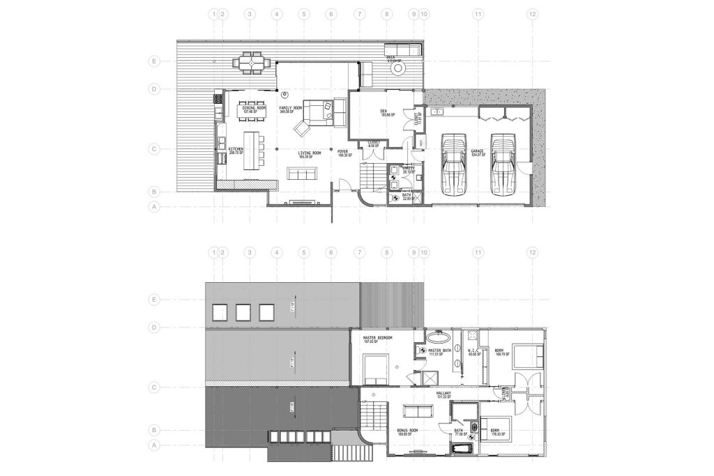
Kenmore Waterview

2S Design Build – Design Planning and Construction

2S Design Build – Design Planning and Construction

2S Design Build is a Seattle-based design planning and construction firm with over a decade of global experience. We specialize in custom design, permitting, construction, and project management for residential and commercial spaces. Our team is committed to bringing your vision to life with creativity, precision, and care — on time and within budget. Serving Seattle, Bellevue, and surrounding areas.

Services

  • Design
  • Permitting
  • Construction
  • Project Management

About

  • Testimonials
  • Portfolio
  • Contact

Social

  • Facebook
  • Instagram